陶瓷衬里管

陶瓷内衬管和弯头

陶瓷内衬管及弯头均采用SHS -离心制造,氧化铝陶瓷管熔点在2045℃,氧化铝层与钢层结构由于工艺特殊原因,应力场也特殊。

陶瓷的高刚性与钢的高弹性相结合,使其具有发电、冶金、矿山、化工等领域使用的耐磨、耐热、耐腐蚀材料无可比拟的特性。yabo网页版

陶瓷内衬管的使用

陶瓷衬管运输已广泛应用于电力、冶金、煤炭、石油、化工、建材、机械等行业。

yabo网页版耐磨直管
yabo网页版耐磨弯头
陶瓷内衬复合钢管的性能研究>>
陶瓷(刚玉:a-Al2O3)内衬耐磨直管和管件内衬由SHS ----yabo网页版生产的高耐磨陶瓷SHS自燃陶瓷复合管的特性

如何更好的包装耐磨管亚博2020最新版yabo网页版

可能有数百种不同的包装耐磨管和弯头的方法,其中大多数都有优点,但有两个原则对任何防止生锈和海上运输安全的方法都至关重要。亚博2020最新版yabo网页版

陶瓷内衬管和弯头

陶瓷内衬复合管是采用“SHS-高温自传播离心合成技术”制成的新型复合材料。

瓷砖内衬直管

瓷砖内衬管道有非常均匀的涂层,特别配方的陶瓷材料,贴在管道内部,并提供一个非常光滑的表面。

我们的包装能满足顾客的任何需要。

自传播高温合成工艺

自传播高温合成(SHS)用来描述初始试剂(通常是粉末)在被点燃时,由于反应的放热而自发转化为产物的过程。

陶瓷内衬管的特点和优点

陶瓷衬管是一种高技术生产技术——自燃高温离合器合成方法。

1).高耐磨性:yabo网页版

刚玉衬的维氏硬度为HV1100 ~ 1500,与钨钴硬质合金一样高,耐磨性是碳素钢管的20倍。该复合陶瓷内衬钢弯头在某矿山使用了约5万小时。普通钢弯头一般使用寿命在700小时左右。

2)耐腐蚀:

刚玉是一种中性材料,耐酸,无污垢。

3)。耐热性:

陶瓷内衬复合钢管可在-50 ~ 800摄氏度的环境下工作。

4).重量轻,安装方便:

陶瓷内衬钢管比合金管、铸铁管、铸石管重量轻,可采用焊接或法兰连接,降低了运输费用,便于安装。

在相同尺寸、型号和长度的管道中,陶瓷管的重量约为耐磨铸造合金钢管的1/2,而成本每米降低10%~20%。yabo亚搏官网

陶瓷内衬钢管的重量约为铸造石弯管的1/3,铸造石直管的1/2。

陶瓷内衬管的主要性能

指数
氧化铝含量 ≥89%
密度 ≥3...5克/立方厘米
洛氏硬度 ≥80年极品
冲击强度 ≥850 Mpa
弯曲强度 ≥290 mpa
打破的脾气 ≥4.8 mpa m1/2
线性热膨胀系数 20 w / m。K

陶瓷(刚玉:a-Al2O3)内衬耐磨直管和管件采用SHS -----yabo网页版--自传播高温合成工艺内衬高耐磨陶瓷。

陶瓷内衬管耐磨对比表

沙注入测试 含SiO污泥30%转移试验2
材料 体积减少
(cm3.
材料 体积减少
(cm3.
Ceamic排列
钢管
0.0022 Ceamic排列
钢管
3.
陶瓷管
艾尔2O3.
0.0025 S45C 25


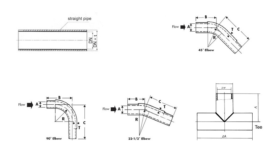
陶瓷内衬管规格尺寸范围:

陶瓷衬里管

箍箍强度是指抗径向压力的能力。陶瓷内衬钢复合管的强度为300 ~ 500MPa。

陶瓷内衬弯头延伸管拉钩
陶瓷内衬管的延伸管引出

yabo网页版亚博2020最新版耐磨管道解决方案

输送高磨耗性材料的钢管系统经常在长途运输中受到持续的攻击。

常见问题

由于外表面表现像低碳钢,该产品可以在现场通过适当的程序切割和焊接,配置成各种配件,并可以接受法兰、焊接环和联轴器的标准端部选择。

保修

我们的质量部检测并确保我们所有的产品都经过100%的检查而没有报告。为了向我们的客户提供额外的服务,我们所有的产品都有24个月的质量保证,以防有缺陷或工艺缺陷。我们的流体流动产品,如管道和配件,节流,孔板等,对侵蚀,缺陷,和/或错误的工艺进行保证。

保证是确定每个创作者和最大持续时间在最大限度的服务。如果任何RS在保修期内出现故障,我们将在第5号更换或维修有缺陷的产品。最终用户。关于如何获得我们产品的保修期,请与阳光钢铁联系。

检查

作为我们质量体系的一部分,100%的原材料,半成品,以及成品在进入我们的库存之前都要经过彻底的检查。我们在整个制造过程中建立了多个等待点,并对所有产品进行全面的最终检查。